Beschreibung
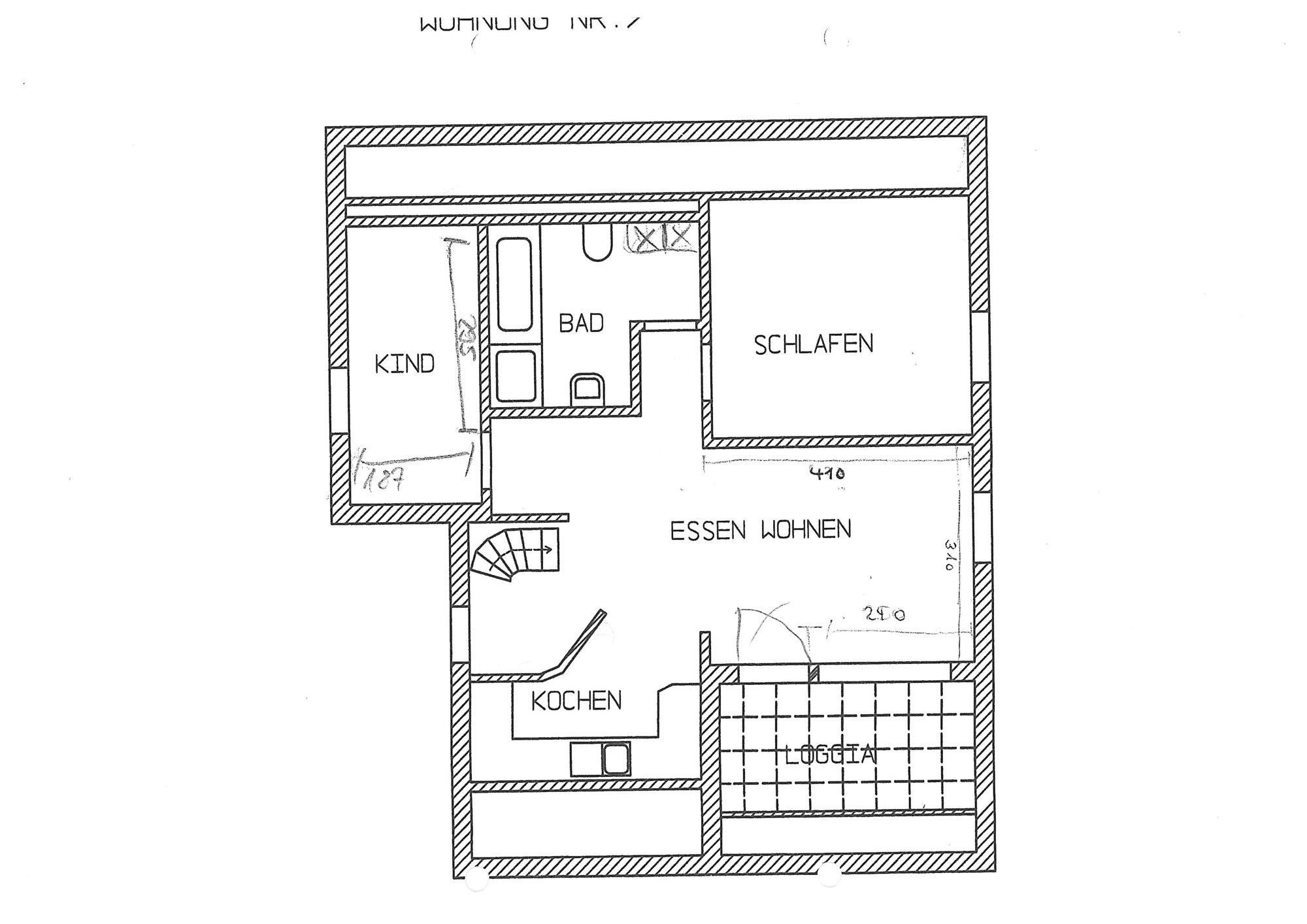
Diese frisch renovierte 3-Zimmer-Dachgeschosswohnung in Michelfeld bietet auf ca. 57,3 m² ein angenehmes Zuhause mit viel Charme. Sichtbares Gebälk, hohe Decken und frisch geschliffene Holzdielen verleihen dem Wohnzimmer eine warme, wohnliche Atmosphäre – mit direktem Zugang zum Südwest-Balkon für sonnige Nachmittage und entspannte Abende im Freien.
Die offene Küche wird aktuell mit einer neuen Einbauküche ausgestattet, die bereits im Mietpreis enthalten ist. Neben dem hellen Wohnzimmer bietet die Wohnung ein geräumiges Schlafzimmer mit Korkboden sowie ein weiteres Zimmer mit Laminatboden – ideal als Arbeitszimmer, Kinderzimmer oder Hobbyraum.
Das gepflegte Badezimmer verfügt über Dusche, Badewanne, ein Dachfenster sowie einen neuen Spiegelschrank. Zusätzlicher Stauraum steht im Spitzboden über eine interne Wendeltreppe sowie im eigenen Kellerabteil zur Verfügung. Ein Tiefgaragenstellplatz ist vorhanden.
Ausstattung
• Frisch renovierte 3-Zimmer-Dachgeschosswohnung
• Ca. 57,3 m² Wohnfläche
• Zusätzliche Abstellfläche im Spitzboden über eine Wendeltreppe
• Balkon in Südwest-Ausrichtung
• Neue Einbauküche inklusive
• Offene Küche mit Fenster und Dunstabzug
• Helles Wohnzimmer mit Zugang zum Balkon
• Hohe Raumhöhe und sichtbares Gebälk im Wohnbereich
• Holzdielenboden im Wohnzimmer frisch geschliffen
• Großes Schlafzimmer mit Korkboden
• Kleines Zimmer mit Laminatboden
• Wände in den Zimmern frisch verputzt (natur Lehmputz)
• Küche und Eingangsbereich gefliest
• Badezimmer mit Dachfenster
• Dusche und Badewanne vorhanden
• Neuer Spiegelschrank im Bad
• Waschmaschinenanschluss im Badezimmer
• Zweifach verglaste Fenster
• Beheizung über Fernwärme
• Eigenes Kellerabteil
• Tiefgaragenstellplatz
• Haustiere nach Absprache
Verfügbar ab 01.06.
Lage
Die ruhige Lage in Michelfeld überzeugt durch kurze Wege und Naturnähe: Bäcker, Kindergarten und Grundschule sind fußläufig erreichbar. Schwäbisch Hall ist in rund 5 km erreichbar, die A6 in ca. 10 Minuten – und wer Erholung sucht, findet den Starkholzbacher See bereits in 5 Minuten mit dem Auto. Wald und Natur sind fußläufig.
Sonstiges
Ein Mietbeginn ist nach aktueller Planung voraussichtlich ab dem 01.06.2026 möglich. Für die Bearbeitung Ihrer Anfrage benötigen wir zwingend vollständige Kontaktdaten (Vorname, Nachname, Anschrift, Telefonnummer, E Mail Adresse). Nach Eingang Ihrer Anfrage und nach Rücksprache sowie Prüfung vereinbaren wir gerne einen persönlichen Besichtigungstermin vor Ort.
Die Kaltmiete beträgt 670 Euro pro Monat. Die Garage wird für 50 Euro pro Monat mitvermietet. Die Nebenkosten Vorauszahlung beträgt insgesamt 235 Euro pro Monat, darin enthalten sind die Heizkosten inklusive Warmwasser in Höhe von circa 120 Euro sowie weitere Nebenkosten in Höhe von circa 115 Euro. Daraus ergibt sich eine monatliche Gesamtmiete von 955 Euro (670 Euro Kaltmiete plus 50 Euro Garage plus 235 Euro Nebenkosten Vorauszahlung inklusive Heizung und Warmwasser).
Wir freuen uns auf Ihre Kontaktanfrage per E Mail und setzen uns schnellstmöglich mit Ihnen in Verbindung, um gemeinsam einen möglichen persönlichen Besichtigungstermin abzustimmen.
Vor Abschluss des Mietvertrags und vor Mietbeginn sind eine SCHUFA Selbstauskunft, Einkommensnachweise der letzten drei Monate sowie eine ausgefüllte Mieter Selbstauskunft erforderlich.
Angaben Energieausweis:
-Baujahr: 1980
-wesentlicher Energieträger: Fernwärme
-Energieausweistyp: Verbrauchsausweis
-Endenergiebedarf: 102 kWh/(m²·a)
-Energieeffizienzklasse: D