Beschreibung
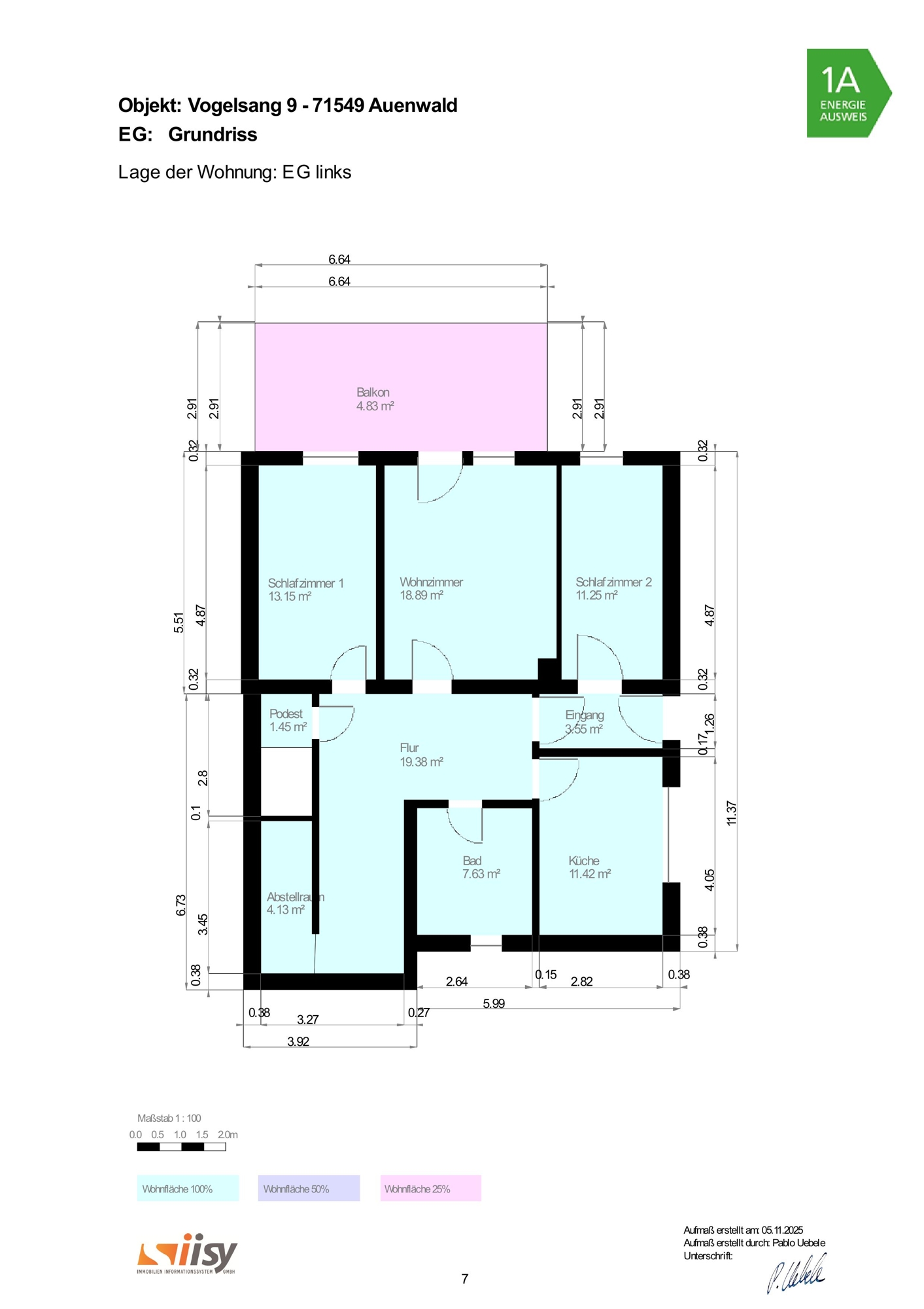
3-Zimmer-Erdgeschosswohnung in einer Doppelhaushälfte (Baujahr 1975) mit vier Wohneinheiten in Auenwald-Lippoldsweiler: ca. 95,68 m² Wohnfläche plus ca. 46,27 m² Nutzfläche im Untergeschoss. Zur Einheit gehören eine Garage und ein Stellplatz in der Einfahrt.
Das Besondere: Vom großzügigen Wohnzimmer aus schweift der Blick durch große Fensterflächen über den sonnigen Süd-West-Balkon hinweg ins grüne Tal. Ein Panorama, das Ihnen täglich die Mittags- und Abendsonne schenkt. Innen überzeugt die durchdachte Raumaufteilung: zwei helle Schlafzimmer, eine separate Küche, ein Bad mit Wanne und Dusche, ein weitläufiger Flurbereich, der mit hochwertigen Steinfliesen gefliest ist und die Wohnung eröffnet, und der in Kombination mit den ebenfalls gefliesten Wohn- und Küchenbereichen für eine sehr alltagstaugliche Gestaltung sorgt, sowie eine praktische Abstellkammer.
Die Wohnung zeigt sich vorwiegend im Originalzustand. Technisch ist sie solide aufgestellt: Öl-Zentralheizung (1992), doppelt verglaste Kunststofffenster (2002) und ein behaglicher Pelletofen (2018) im Wohnzimmer sorgen für angenehme Wärme. Das innenliegende Bad ist funktional gestaltet und bietet alle Annehmlichkeiten für den Alltag. Das Wohnzimmer ist hell und freundlich durch die Balkontür und einem großen Fester. Von hier aus gelangen Sie direkt auf den sonnigen Balkon. Ein wunderbarer Ort, um den Tag entspannt ausklingen zu lassen und den Blick ins Grüne zu genießen. Diese Verbindung von Wohnraum und Außenbereich schafft eine einladende Atmosphäre voller Licht und Lebensqualität. Im Untergeschoss warten vier Abstellräume mit teils gefliesten Böden. Ideal für Vorräte, Hobbyecken oder als Ordnungshüter im lebendigen Familienalltag.
Ideal für Paare und Familien, die ein ruhiges Zuhause in natürlicher Umgebung und Randlage suchen.
Ausstattung
• Baujahr 1975
• Ca. 95,68 m² Wohnfläche, ca. 46,27 m² Nutzfläche
• Separater Wohnungseingang
• Öl-Zentralheizung, erneuert 1992, verteilt über Heizkörper
• Kunststofffenster, doppelt verglast, erneuert 2002
• Gemütlicher Pelletofen im Wohnzimmer, 2018 eingebaut
• Garage mit 2018 erneuertem Tor
• Stellplatz im Hof
• Sonniger Balkon mit Markise, Süd-West-Ausrichtung
• Badezimmer mit Wanne und Dusche, Belichtung über Lichtschacht
• Böden: Fliesen in Wohnzimmer, Küche, Bad und Diele; Vinyl in den Schlafzimmern
• 4 praktische Kellerräume, teils gefliest; überwiegend Betonboden
• Verwaltung durch Miteigentümer aus der Gemeinschaft
Lage
Auenwald-Lippoldsweiler ist ein Ort wie geschaffen für Familien und Paare, die Natur und Gemeinschaft lieben. Eingebettet in die malerische Landschaft des Schwäbisch-Fränkischen Waldes erwartet Sie hier eine Ortsrandlage mit dörflicher Charme, viel Grün und eine herzliche Nachbarschaft. Kinder können hier sicher aufwachsen.
Direkt vor der Haustür beginnt das Abenteuer: Attraktive Wander- und Radwege führen durch duftende Wälder, blühende Wiesen und entlang plätschernder Bachläufe. Ob Hörschbachschlucht, Strümpfelbachtal oder Schloss Ebersberg, die Umgebung bietet Ausflugsziele für jedes Alter. Spielplätze, Sportvereine und ein lebendiges Vereinsleben sorgen für Abwechslung und echte Gemeinschaft.
Die Infrastruktur ist familienfreundlich: Kindergärten und Grundschulen finden Sie im Ort. Weiterführende Schulen, Ärzte und größere Geschäfte erreichen Sie bequem in Backnang und Winnenden. Beide Städte liegen nur 10 bis 15 Autominuten entfernt und sind auch mit dem Bus gut angebunden. Stuttgart ist rund 35 Kilometer entfernt und in etwa 40 Minuten per Auto oder S-Bahn erreichbar.
Ein echter Pluspunkt für den Alltag: Direkt im Ortsteil befindet sich ein moderner EDEKA-Supermarkt. So können Sie Ihre Einkäufe bequem zu Fuß erledigen. Zusätzlich sorgen Bäckereien, kleine Geschäfte, medizinische Dienste und gemütliche Gastronomie für alles, was Sie brauchen.
Lippoldsweiler überzeugt durch ein angenehmes Mikroklima, viele Sonnenstunden und die unmittelbare Nähe zu Feldern und Wäldern. Ideal für spontane Spaziergänge und naturnahe Freizeitgestaltung. Die Gemeinde punktet mit vielen Vereinen, regelmäßigen Festen, Märkten und Kulturveranstaltungen, die das Miteinander stärken. Wer Lebensqualität, Natur und kurze Wege zu schätzen weiß, findet hier ein ideales, familienfreundliches Zuhause. Die perfekte Balance zwischen ländlicher Idylle und städtischer Anbindung.
Sonstiges
Bitte senden Sie uns eine schriftliche Anfrage inkl. vollständiger Kontaktdaten.
Sehr gerne stehen wir Ihnen für Ihre Fragen zur Verfügung und freuen uns darauf, Ihnen die Immobilie persönlich bei einem individuellen Besichtigungstermin vor Ort zu präsentieren. Zögern Sie nicht, uns telefonisch zu kontaktieren – wir freuen uns auf das Gespräch mit Ihnen!
Sie erhalten unmittelbar im Anschluss das Exposé inkl. Objektanschrift sowie eine Einladung in die virtuelle 360°- Besichtigung dieser Immobilie, um sich einen konkreten ersten Eindruck zu verschaffen!
Alternativ gelangen Sie hier direkt unter folgendem Link zur 360°- Besichtigung
https://tour.giraffe360.com/44e7b9b06bff48bb8767b3ab80733f7f/?nocookie
***
Angaben Energieausweis:
-Baujahr: 1975
-wesentlicher Energieträger: Öl + Holz (Pellet)
-Energieausweistyp: Bedarfsausweis
-Endenergiebedarf: 144,4 kWh/(m²·a)
-Energieeffizienzklasse: E
-Nutzung erneuerbarer Energien: Holz (Pellet)
***
Bezugszeitpunkt: flexibel, Übergabe nach Absprache (kurzfristig möglich).
Hausgel: 285,- Monatlich